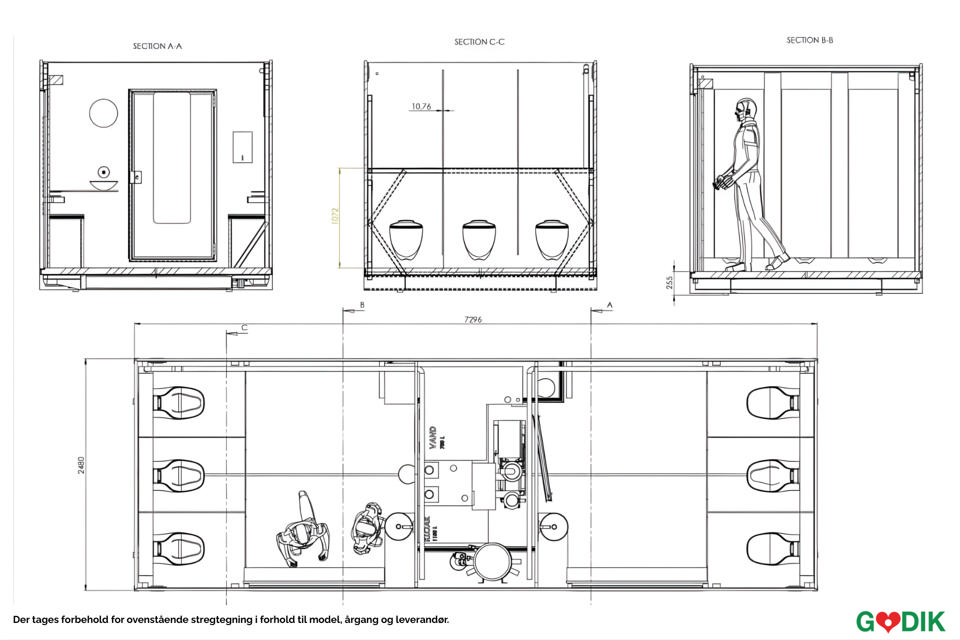
VIP vacuum toiletvogn med 6 toiletter (M/K)
Varenr. 02142

Vil du lykkes med dit projekt?
Vores team af eksperter rådgiver dig om alt fra planlægning til levering – helt gratis og uforpligtende.
| Number: | 02142 |
|---|---|
| Højde (cm): | 315 cm |
| Længde (cm): | 730 cm |
| Bredde (cm): | 250 cm |
| Netto vægt: | 3500 kg |
| Kapacitet (ca. antal per time): | 150 |
| Tankkapacitet (ca. antal besøg): | 2000 |
| Antal toiletter: | 6 |
| Håndvaske: | 2 stk. m/ tempostop vandhaner |
| Vacuumanlæg: | 1 stk. med skyl og sug |
| El-tilslutning: | 1 stk 400 V/ 32 A CEE-stik |
| Max. effektforbrug (W): | 8460 |
| Vandtilslutning: | 3/4” Nito kobling |
| Afløbstilslutning: | 2” C-kobling (2” brandslange) |
| Pumpelængde (m): | 30 |
| Antal vand tanke: | 2 |
| Vand tank (L): | 600 |
| Antal spildevand tanke: | 2 |
| Spildevand tank (L): | 1000 |
| Kugletræk (mm): | 50 |
| Synsfri sammenkobling (kg): | 3500 |
Inventar 3 dametoiletter, 3 herretoiletter, LED lys udv. og indv., radiator, spejl, knage, toiletpapirholder,madameposeholder, skydedøre, håndtørre, højtaler til musik. |
| 1 stk. 3/4" vandslange på 25 meter. 1 stk. 2" afløbsslange på 30 meter. |
| 1 stk. 400V/32A CEE-kabel på 25 meter. |
Eksklusiv toiletvogn med separate afdelinger til damer og herrer. Indrettet med håndvaske, spejl, belysning og et elegant og komfortabelt touch. |















