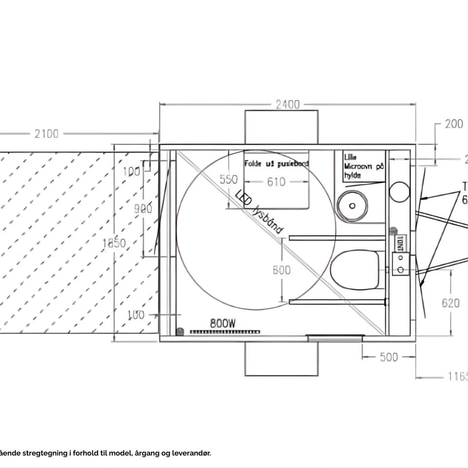
Handicap toiletvogn / puslevogn
Varenr. 03515

Vil du lykkes med dit projekt?
Vores team af eksperter rådgiver dig om alt fra planlægning til levering – helt gratis og uforpligtende.
| Number: | 03515 |
|---|---|
| Højde (cm): | 260 cm |
| Længde (cm): | 240 cm |
| Bredde (cm): | 230 cm |
| Netto vægt: | 1000 kg |
| Kapacitet (ca. antal per time): | 25 |
| Antal toiletter: | 1 |
| Antal håndvaske: | 1 |
| El-tilslutning: | 1 stk 230 V/ 16 A CEE-stik |
| Max. effektforbrug (W): | 6110 |
| Vandtilslutning: | 3/4” Nito kobling |
| Afløbstilslutning: | 1” Nito kobling |
| Afløbskværn, antal: | 1 |
| Afløbskværn, pumpelængde (m): | 100 |
| Rampe længe (m): | 2,5 |
| Rampe fald (cm): | 25 |
| Rampe fald per meter (cm): | 11,5 |
| Synsfri sammenkobling (kg): | 1000 |
Inventar LED lamper udv. og indv., radiator, dispenser holder, håndvask, spejl, knager, mikroovn. |
| 1 stk. 3/4" vandslange på 25 meter. 1 stk. 1" afløbsslange på 25 meter. |
| 1 stk. 230V/16A CEE-kabel på 25 meter. |
Handicapvenlig toiletvogn med vacuum teknologi og pusleplads. Sikrer tilgængelighed for alle og skaber trygge og hygiejniske forhold for familier og gæster med særlige behov. |











