Skyliner/Dobbeltdækker kontorvogn
Varenr. 04430

Vil du lykkes med dit projekt?
Vores team af eksperter rådgiver dig om alt fra planlægning til levering – helt gratis og uforpligtende.
| Number: | 04430 |
|---|---|
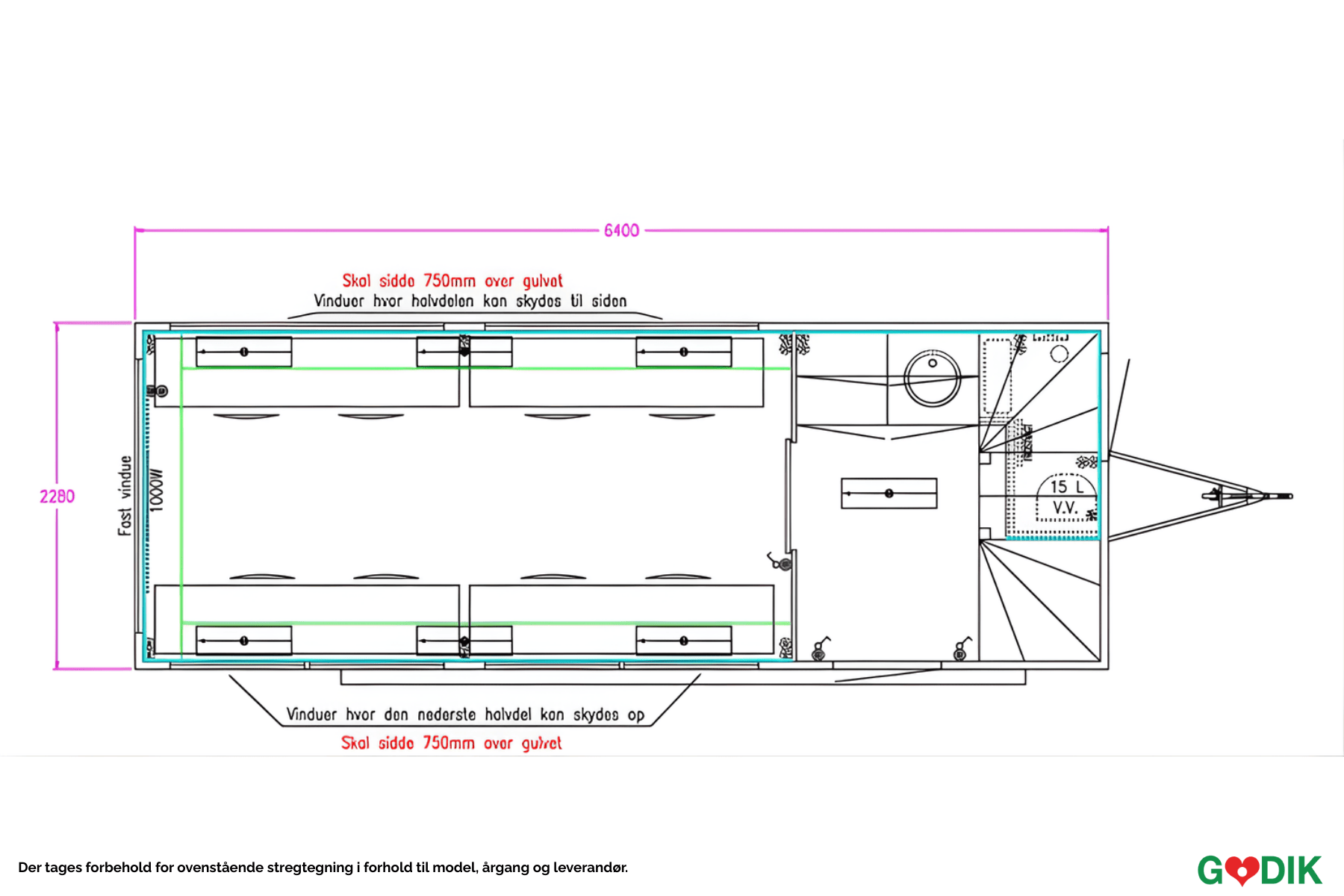
| Højde (cm): | 390 cm |
| Længde (cm): | 660 cm |
| Bredde (cm): | 250 cm |
| Mål noter: | Mål udslået: Højde: 520, Længde: 660, Bredde: 250 cm. |
| Netto vægt: | 3500 kg |
| Kapacitet (tekst): | 1. sal: 25 personer eller 9 arbejdspladser. Underetage: 20 personer eller 7 arbejdspladser. |
| El-tilslutning: | 1 stk 400 V/ 16 A CEE-stik |
| Max. effektforbrug (W): | 3358 |
| Vandtilslutning: | 3/4” Nito kobling |
| Afløbstilslutning: | 1” Nito kobling |
| Afløbskværn, antal: | 1 |
| Afløbskværn, pumpelængde (m): | 50 |
| Synsfri sammenkobling (kg): | 3500 |
| Kugletræk (mm): | 50 |
Inventar Underetage: 8 stole, ca. 8 m arbejdsbord, skydevinduer, billetluger med rullegardin, tekøkken med køleskab, overskab, knage,lysdæmper på lys, hylder over vinduer, indvendig trappe.1. sal: 9 stole, ca. 10 m arbejdsbord, lysdæmper på lys, skydevinduer med rullegardin, 12 m ståbord.Forberedt for kabeltræk i 100 mm rør fra under- til overetage.Hejs af 1. sal: elektrisk, 12V. |
| 25 meter vandslange, afløbsslange og elkabel. |
To etagers / dobbeltdækker kontorvogn med stor kapacitet og fleksibel indretning. Giver overblik over pladsen ved store projekter og events. Oplagt til festivaler, grand prix og større events |





















