Vare nr. 04490

Kontorvogn med 2 rum og toilet

Udvalgte specifikationer
Netto vægt
1200 kg
El-tilslutning
1 stk 400 V/ 16 A CEE-stik
El-tilslutning - Stik-type
CEE-stik
Vandtilslutning
3/4” Nito kobling
Om produktet

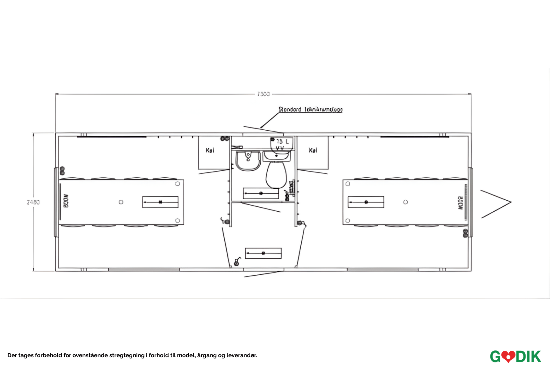
2 rums kontorvogn (plads til 16 personer) med inventar, samt med toilet og håndvask

Ved at udfylde formularen giver du samtykke til at modtage e-mails med nyheder og viden fra Godik. Du kan læse mere i vores privatlivspolitik og altid afmelde dig igen.
Skal vi hjælpe med dit projekt?

Specifikationer

Number
04490
Netto vægt
1200 kg
Indvendigt mål, højde (cm)
210
Indvendigt mål, længde (cm)
714
Indvendigt mål, bredde (cm)
235
Udvendigt mål, højde (cm)
295
Udvendigt mål, længde (cm)
730
Udvendigt mål, bredde (cm)
250
Antal toiletter
1
Antal håndvaske
1
El-tilslutning
1 stk 400 V/ 16 A CEE-stik
Max. effektforbrug (W)
6170
Vandtilslutning
3/4” Nito kobling
Afløbstilslutning
1” Nito kobling
Afløbskværn, antal
1
Afløbskværn, pumpelængde (m)
50
Varmtvandsbeholder, antal
1
Synsfri sammenkobling (kg)
2000
Kugletræk (mm)
50

Beskrivelse

Kontorvogn med praktisk opdeling i to separate rum – ideel til afdelinger eller møderum. Vognen indeholder toilet og håndvask.

Hvad er inkluderet i lejen?

25 meter vandslange, afløbsslange og elkabel.

Standardtypegodkendt.

Inventar
2 rum, forgang, knagerække, spejl, toilet, håndvask, varmtvandsbeholder, 2 borde, 16 stole, 2 køleskabe, 2 opslagstavler, 2 el-radiatorer, stikkontakter, 4 oplukkelige dreje/kip vinduer, rullegardin.