Kontorvogn med 2 rum
Varenr. 04480

Vil du lykkes med dit projekt?
Vores team af eksperter rådgiver dig om alt fra planlægning til levering – helt gratis og uforpligtende.
| Number: | 04480 |
|---|---|
| Højde (cm): | 295 cm |
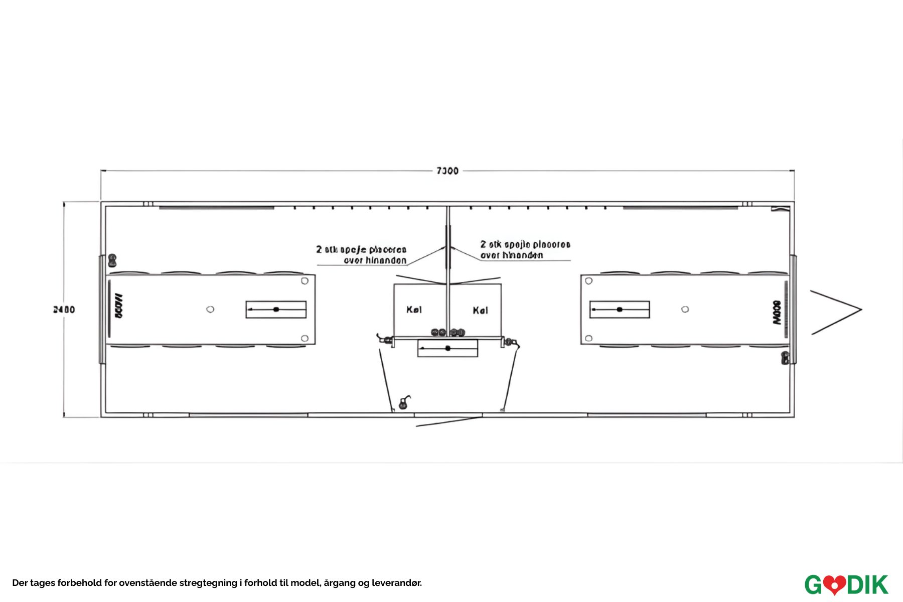
| Længde (cm): | 730 cm |
| Bredde (cm): | 250 cm |
| Netto vægt: | 1200 kg |
| El-tilslutning: | 1 stk 400 V/ 16 A CEE-stik |
| Max. effektforbrug (W): | 2180 |
| Synsfri sammenkobling (kg): | 2000 |
Inventar 2 rum, forgang, knagerække, 2 spejle, 2 borde, 16 stole, 2 køleskabe, 2 opslagstavler, 2 el-radiatorer,stikkontakter, 4 oplukkelige dreje/kip vinduer, rullegardin. |
| 25 meter elkabel 400V/16A. |
Kontorvogn med to separate rum og plads til 16 personer. Giver fleksible arbejdsforhold på midlertidige lokationer. |











