Vare nr. 04015

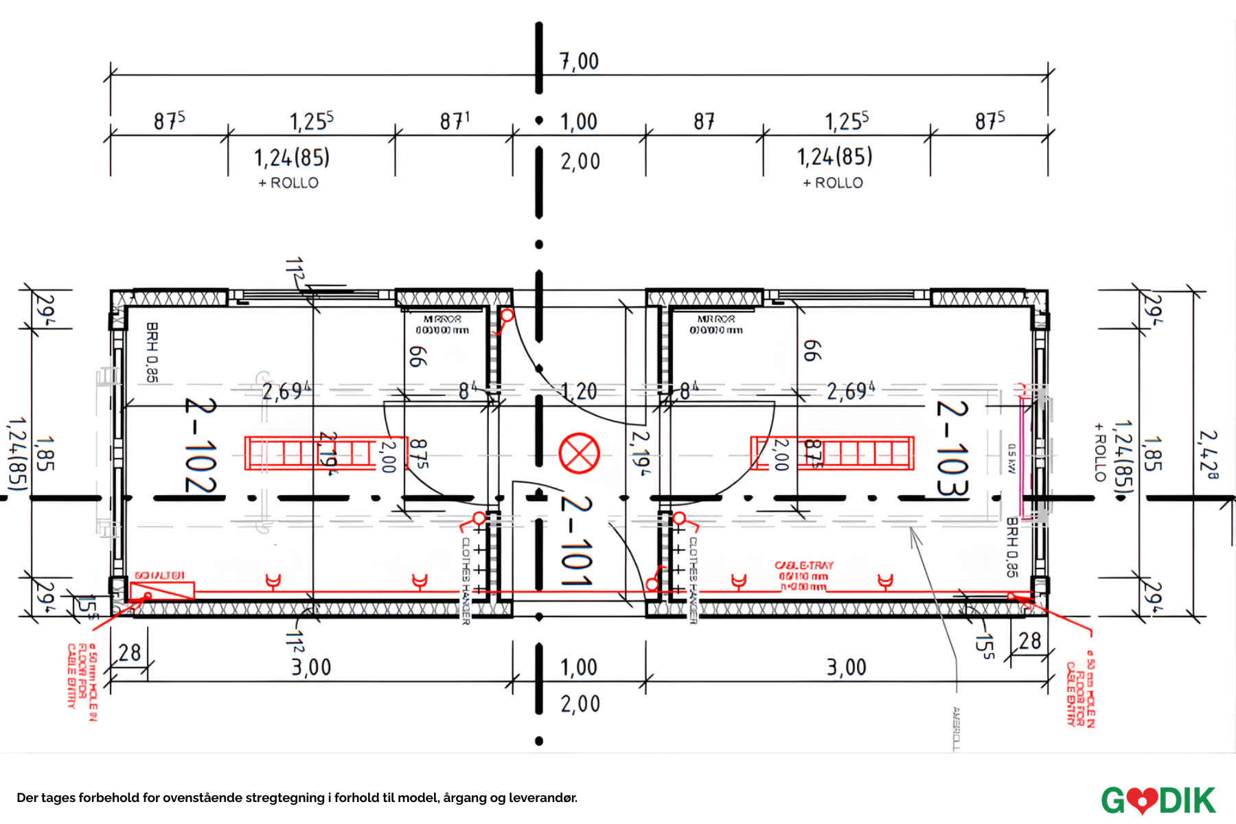
Kontormodul med 2 rum

Udvalgte specifikationer
Bredde (cm)
242 cm
Højde (cm)
275 cm
Længde (cm)
700 cm
Netto vægt
2500 kg
El-tilslutning
1 stk 400 V/ 16 A CEE-stik
El-tilslutning - Stik-type
CEE-stik
Om produktet

7 m. langt kontormodul med 2 rum

Dette produkt er ikke på hjul - transport kræver truck.
Ved at udfylde formularen giver du samtykke til at modtage e-mails med nyheder og viden fra Godik. Du kan læse mere i vores privatlivspolitik og altid afmelde dig igen.
Skal vi hjælpe med dit projekt?

Specifikationer

Number
04015
Højde (cm)
275 cm
Længde (cm)
700 cm
Bredde (cm)
242 cm
Netto vægt
2500 kg
El-tilslutning
1 stk 400 V/ 16 A CEE-stik
Max. effektforbrug (W)
5300

Beskrivelse

Kontormodul med to adskilte rum for fleksibel brug. Velegnet som kontor eller møderum.

Hvad er inkluderet i lejen?

Løfteramme for wirehejs.

Inventar
2 rum, el-radiator, lysarmaturer, el-udtag 230V, oplukkelige vinduer, spejl.