Produktionsvogn
Varenr. 05117

Vil du lykkes med dit projekt?
Vores team af eksperter rådgiver dig om alt fra planlægning til levering – helt gratis og uforpligtende.
| Number: | 05117 |
|---|---|
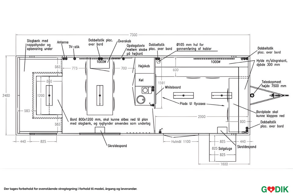
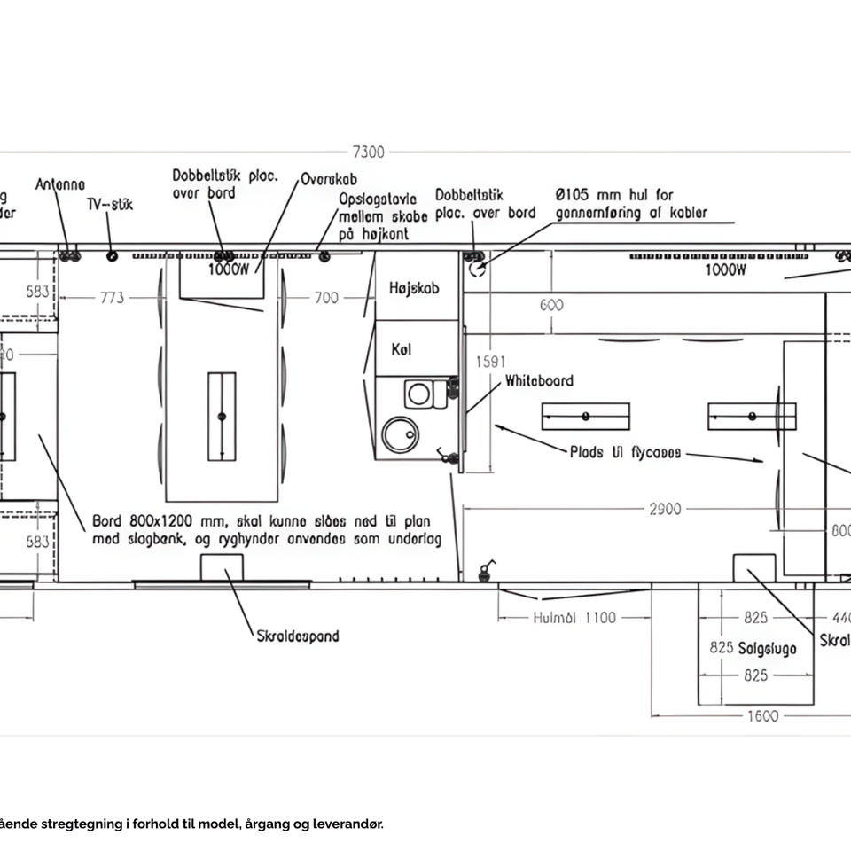
| Udvendigt mål, højde (cm): | 295 |
| Udvendigt mål, længde (cm): | 730 |
| Udvendigt mål, bredde (cm): | 250 |
| Antal håndvaske: | 1 |
| El-tilslutning: | 1 stk 400 V/ 16 A CEE-stik |
| Vandtilslutning: | 3/4” Nito kobling |
| Afløbstilslutning: | 1” Nito kobling |
| Afløbskværn, antal: | 1 |
| Afløbskværn, pumpelængde (m): | 50 |
| Synsfri sammenkobling (kg): | 2000 |
| Kugletræk (mm): | 50 |
| Teleskopmast: 7 meter hydraulisk med LED lamper og antenne. Inventar på kontor Skrivebord m/ overhylder, 2 stole, opslagstavle, gulvgennemføring til kabler, klapbordplade m/ overhylder, affaldsspand. Inventar i køkken/opholdsrum Køkkenhøjskab, flaskekøler, kaffemaskine, mikroovn, vask m/ afløbskværn, bord, 6 stole, affaldsspand, hjørnesofa, dobbeltseng, tv.Vognen er forberedt til kamera- og GPS digital radioovervågning. |
| 25 meter vandslange, afløbsslange og elkabel 400V/16A. |
Godiks mobile produktionsvogn er forberedt til kamera- og GPS digital radio overvågning, og det er muligt at leje alt udstyret hos Godik. Derudover har vognen fuldt køkken og arbejdsplads. Designet til film-, event- og byggeproduktion. |











