Miljøvogn
Udvalgte specifikationer
- Bredde (cm)
- 250 cm
- Højde (cm)
- 295 cm
- Længde (cm)
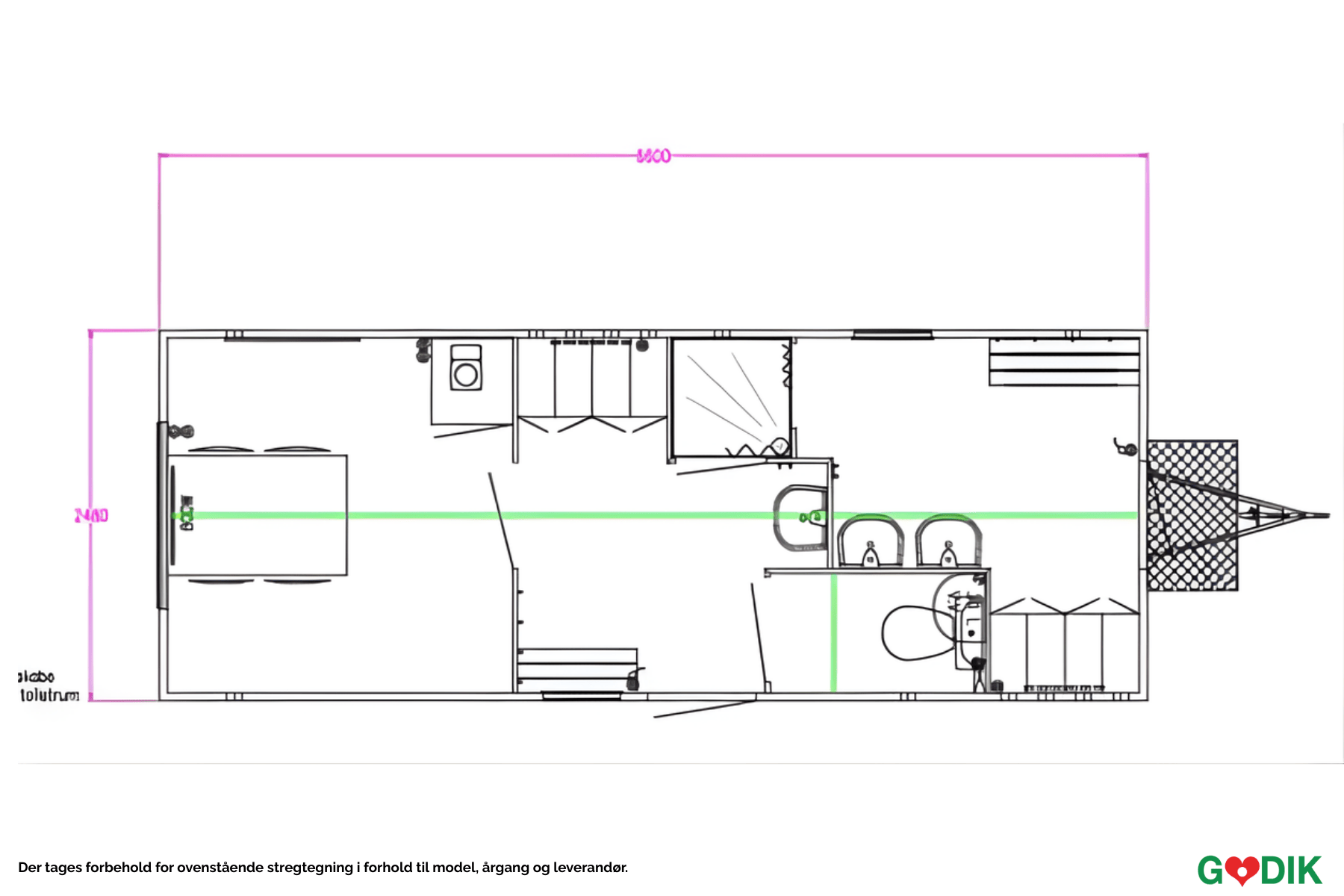
- 660 cm
- El-tilslutning
- 1 stk 400 V/ 16 A CEE-stik
- El-tilslutning - Stik-type
- CEE-stik
- Kapacitet (tekst)
- 4 personer
- Vandtilslutning
- 3/4” Nito kobling
Om produktet
Lej miljøvogn/mandskabsvogn til specialopgaver som asbest og epoxy med opdeling i ren og beskidt zone. Miljøvognen er indrettet til fire personer med opdeling af ren og beskidt zone. Den lever op til gældende lovkrav og sikrer jeres hygiejne og sikkerhed i forbindelse med specialopgaver.
Specifikationer
- Number
- 04604
- Højde (cm)
- 295 cm
- Længde (cm)
- 660 cm
- Bredde (cm)
- 250 cm
- Kapacitet (tekst)
- 4 personer
- Antal toiletter
- 1
- Antal håndvaske
- 3
- El-tilslutning
- 1 stk 400 V/ 16 A CEE-stik
- Max. effektforbrug (W)
- 5930
- Vandtilslutning
- 3/4” Nito kobling
- Afløbstilslutning
- 1” Nito kobling
- Synsfri sammenkobling (kg)
- 1900
Beskrivelse
-
Lej en miljøvogn der er udviklet til byggepladser og renoveringsopgaver, hvor sikkerhed og arbejdsmiljø er i fokus. Vognen opfylder de nye lovkrav (gældende fra 1. januar 2025) for arbejde med materialer som asbest – og giver medarbejderne trygge, hygiejniske rammer i hverdagen.
Miljøvognen er opdelt i to zoner: en beskidt zone og en ren zone, adskilt af brusekabinen, som sikrer en effektiv og kontrolleret overgang mellem arbejdstøj og rent tøj.
Her er plads til fire personer med separate rum til ophold, omklædning og bad.
Vognen er fuldt udstyret med alt nødvendigt inventar – herunder køleskab, tavle og el-udtag til fx mikroovn og kaffemaskine. Den kombinerer høj funktionalitet med komfort, så arbejdet kan udføres sikkert og effektivt dagen igennem.
Hvad er inkluderet i lejen?
- 25 meter vandslange, afløbsslange og elkabel, 1 stk. trappe, 1 stk. håndsving.
-
Afløbssliber: pumpelængde 50 meter.
Miljøvogn for kloak, asbest og epoxy arbejde.
Inventar
1 bord, 4 stole, kaffemaskine, badeværelse med vandskyllende toilet og afløbskværn, køleskab, separat garderobe (til arbejdstøj og rent tøj), 8 stålskabe (4 skabe i hver zone), opslagstavle, knagerækker, 3 håndvaske med håndfrie vandhaner, 2 bænke.