Miljøvogn
Varenr. 04604

Vil du lykkes med dit projekt?
Vores team af eksperter rådgiver dig om alt fra planlægning til levering – helt gratis og uforpligtende.
| Number: | 04604 |
|---|---|
| Højde (cm): | 295 cm |
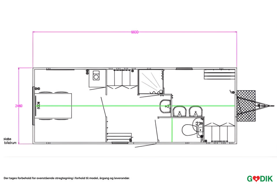
| Længde (cm): | 660 cm |
| Bredde (cm): | 250 cm |
| Kapacitet (tekst): | 4 personer |
| Antal toiletter: | 1 |
| Antal håndvaske: | 3 |
| El-tilslutning: | 1 stk 400 V/ 16 A CEE-stik |
| Max. effektforbrug (W): | 5930 |
| Vandtilslutning: | 3/4” Nito kobling |
| Afløbstilslutning: | 1” Nito kobling |
| Synsfri sammenkobling (kg): | 1900 |
| Afløbssliber: pumpelængde 50 meter.Miljøvogn for kloak, asbest og epoxy arbejde. Inventar 1 bord, 4 stole, kaffemaskine, badeværelse med vandskyllende toilet og afløbskværn, køleskab, separat garderobe (til arbejdstøj og rent tøj),8 stålskabe (4 skabe i hver zone), opslagstavle, knagerækker, 3 håndvaske med håndfrie vandhaner, 2 bænke. |
| 25 meter vandslange, afløbsslange og elkabel, 1 stk. trappe, 1 stk. håndsving. |
Godiks miljøvogn er udviklet til byggepladser og renoveringsopgaver, hvor sikkerhed og arbejdsmiljø er i fokus. Vognen opfylder de nye lovkrav (gældende fra 1. januar 2025) for arbejde med materialer som asbest – og giver medarbejderne trygge, hygiejniske rammer i hverdagen. Miljøvognen er opdelt i to zoner: en beskidt zone og en ren zone, adskilt af brusekabinen, som sikrer en effektiv og kontrolleret overgang mellem arbejdstøj og rent tøj. Her er plads til fire personer med separate rum til ophold, omklædning og bad. Vognen er fuldt udstyret med alt nødvendigt inventar – herunder køleskab, tavle og el-udtag til fx mikroovn og kaffemaskine. Den kombinerer høj funktionalitet med komfort, så arbejdet kan udføres sikkert og effektivt dagen igennem. |





.png&width=960&x=0&y=0&crop=7&format=webp&quality=75)






.png&width=960&height=960&x=0&y=0&crop=7&format=webp&quality=75)




