Køkkenvogn
Varenr. 04836

Vil du lykkes med dit projekt?
Vores team af eksperter rådgiver dig om alt fra planlægning til levering – helt gratis og uforpligtende.
| Number: | 04836 |
|---|---|
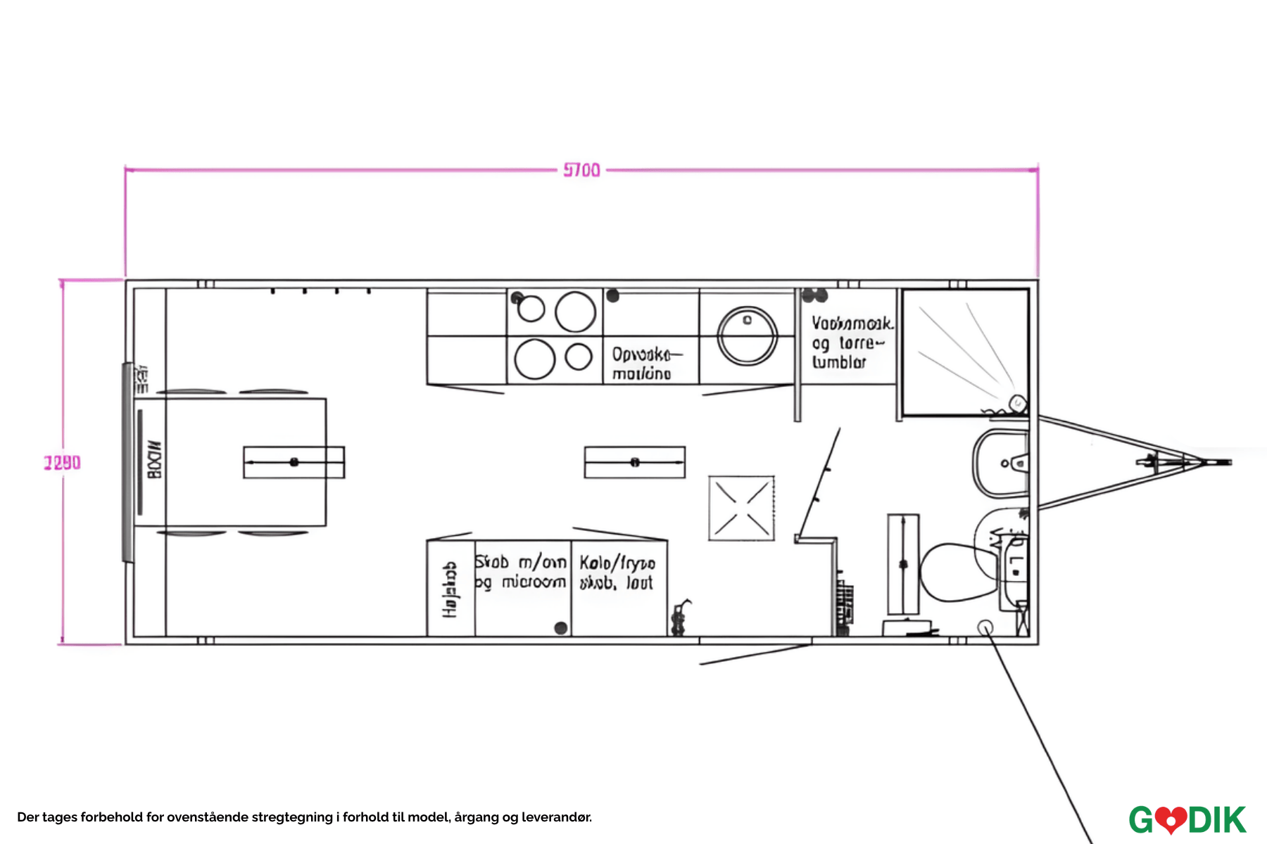
| Højde (cm): | 295 cm |
| Længde (cm): | 570 cm |
| Bredde (cm): | 230 cm |
| Netto vægt: | 1400 kg |
| Antal bad: | 1 |
| Antal toiletter: | 1 |
| Antal håndvaske: | 1 |
| Antal køkken: | 1 |
| El-tilslutning: | 1 stk 400 V/ 16 A CEE-stik |
| Max. effektforbrug (W): | 18348 |
| Vandtilslutning: | 3/4” Nito kobling |
| Afløbstilslutning: | 1” Nito kobling |
| Afløbskværn, antal: | 1 |
| Afløbskværn, pumpelængde (m): | 50 |
| Varmtvandsbeholder, antal: | 1 |
| Varmtvandsbeholder (l): | 30 |
| Synsfri sammenkobling (kg): | 1800 |
| Kugletræk (mm): | 50 |
Inventar Køkken med keramiske kogeplader, emfang, køkkenvask, opvaskemaskine, køle/fryseskab, højskab med ovn og mikroovn,1 bord, 4 stole, hylde over køkkenafd., opslagstavle, knager, 2x230V udtag. 800W el-radiator. Badeværelse med toilet med afløbskværn, bruser, vaskesøjle med vaskemaskine og tørretumbler. |
| 25 meter vandslange, afløbsslange og elkabel, 1 stk. trappe, 1 stk. håndsving. |
Multifunktionel køkkenvogn med vaskemaskine, bad og toilet. Ideel til længere ophold og crewområder med behov for komfort og hygiejne. |













