Vare nr. 04809
Beboelsesvogn til 4 personer, 9 meter
Udvalgte specifikationer
- Bredde (cm)
- 250 cm
- Højde (cm)
- 302 cm
- Længde (cm)
- 900 cm
- Netto vægt
- 2900 kg
- Antal bad
- 1
- Antal håndvaske
- 1
- Antal køkken
- 1
- El-tilslutning
- 1 stk 400 V/ 16 A CEE-stik
- Kapacitet (tekst)
- 4 personer
Om produktet
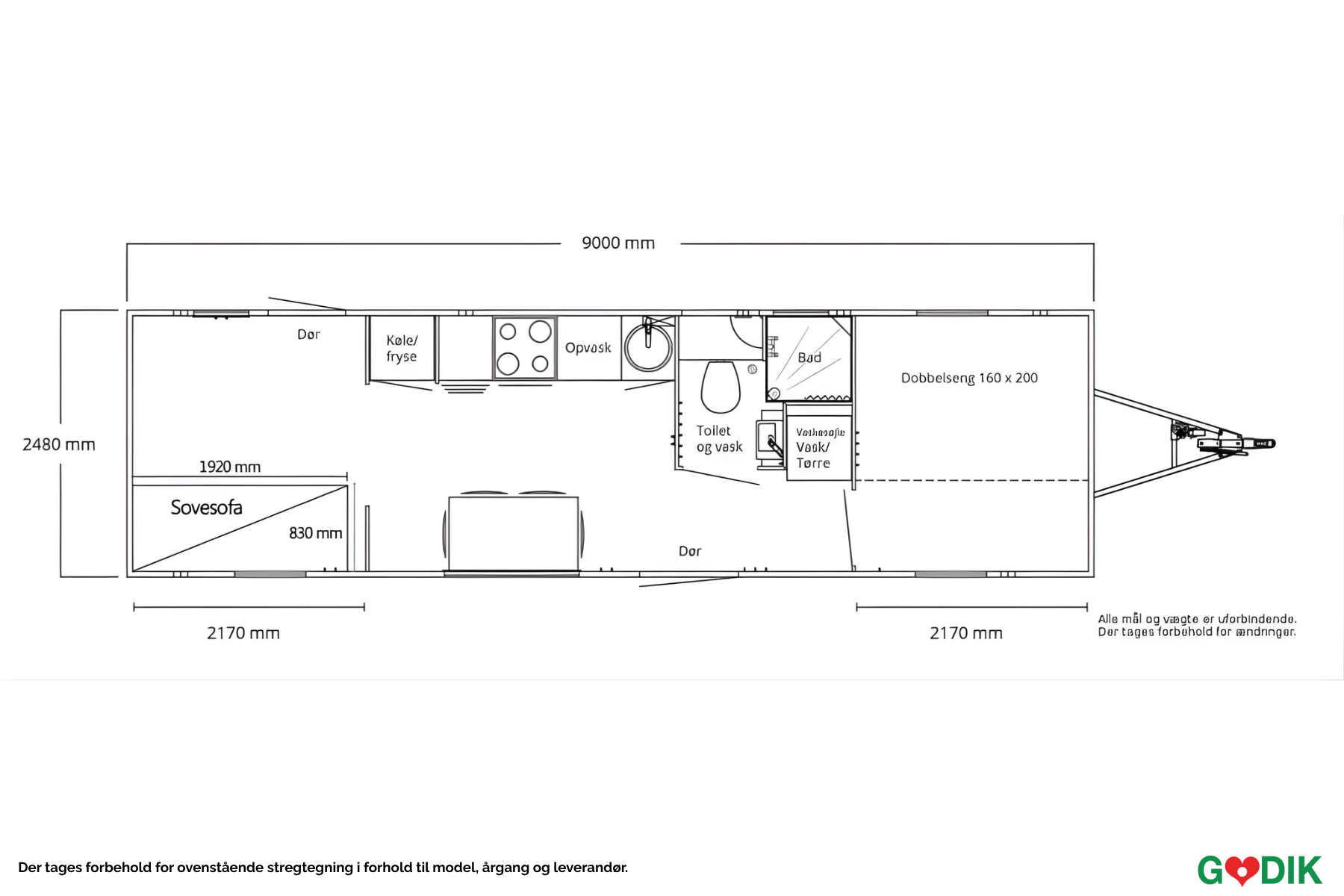
9 meter beboelsesvogn 4 sovepladser, køkken, vaskemaskine og bad/toilet
Specifikationer
- Number
- 04809
- Højde (cm)
- 302 cm
- Længde (cm)
- 900 cm
- Bredde (cm)
- 250 cm
- Netto vægt
- 2900 kg
- Kapacitet (tekst)
- 4 personer
- Antal bad
- 1
- Antal toiletter
- 1
- Antal håndvaske
- 1
- Antal køkken
- 1
- El-tilslutning
- 1 stk 400 V/ 16 A CEE-stik
- Max. effektforbrug (W)
- 17582
- Vandtilslutning
- 3/4” Nito kobling
- Afløbstilslutning
- 1” Nito kobling
- Afløbskværn, antal
- 1
- Afløbskværn, pumpelængde (m)
- 50
- Synsfri sammenkobling (kg)
- 3000
- Kugletræk (mm)
- 50
Beskrivelse
-
9m lang beboelsesvogn med fire sovepladser, ophold, bad og køkken. Ideel til længere projekter eller events med behov for komfortabel indkvartering.
Hvad er inkluderet i lejen?
- 25 meter vandslange, afløbsslange og elkabel. 1 stk. trappe, 1 stk. håndsving.
-
Mulighed for sammenkobling med kontorvogn.
Inventar
1 soverum med dobbeltseng, bøjlestænger og tophylder. 1 soverum med sovesofa (L: 192 cm, B: 130 cm), bøjlestænger og tophylder. Køkken med 1 bord, 4 stole, kaffemaskine, køle/fryseskab, kogeplade, ovn, mikrobølgeovn, opvaskemaskine.Toiletrum med bad, vandskyllende toilet med afløbskværn, vaske/tørre maskine, gulvvarme i hele vognen.